- Bauherrschaft Gemeinde Richterswil
- Architektur Horisberger Wagen Architekten GmbH
- Leistungen Phasen 31 – 53: Baugrube, Fundation, Beton-, Holzbau
- Projekt Phase 41 abgeschlossen
- Bearbeitung 2022 - 2026
- Baukosten ca. CHF 30 Mio.
- Kenndaten GV SIA 416: 38’570 m3, GF SIA 416: 6’259 m2
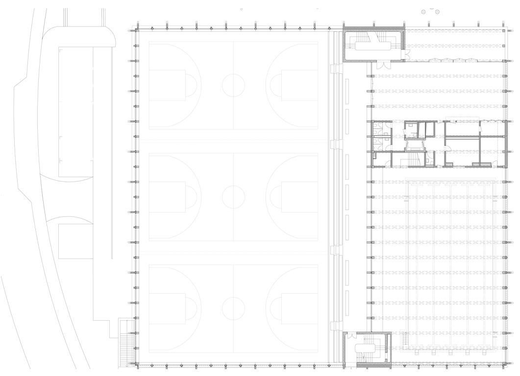
Die Schulanlage Feld in Richterswil wird um ein Sportgebäude erweitert. Neben der Dreifachturnhalle beherbergt der Neubau ein Lehrschwimmbecken sowie Schulungs- und Gymnastikräume. Das Sportgebäude stellt nicht nur neue Räumlichkeiten für den Unterricht und die lokalen Sportvereine zur Verfügung, sondern bildet mit seiner Präsenz das neue Gesicht der Schulanlage. Ergänzend wird eine Tiefgarage realisiert.
Die Hauptspannweite über Turnhalle und Tribünenbereich beträgt ca. 35 m und wird mit 26 cm breiten und bis zu 2.48 m hohen Brettschichtholzträgern stützenfrei überspannt. Die Träger sind im Abstand von 2.24 m angeordnet und bilden ein Satteldach. Zwischen den Trägern bilden 12 cm starke Brettschichtholzplatten die Dachebene.
Im Bereich des Lehrschwimmbeckens besteht das Tragwerk aus einer vorfabrizierten Betonkonstruktion. Nur so hat die 20 m spannende Decke ausreichend Steifigkeit, um im darüber liegenden Gymnastikraum Tanzunterricht ohne störende Schwingungen zu ermöglichen. Die dafür erforderlichen Betonträger werden im Werk vorgefertigt und mit zwei Spannkabeln mit parabolischem Verlauf vorgespannt. Runde Aussparungen ermöglichen die Durchführung der Haustechnikleitungen. Zwischen den Betonträgern werden 6 cm starke Betonhalbfertigplatten versetzt und vor Ort mit 12 cm Überbeton ergänzt.
Die Gebäudelasten werden mittels Flachfundation in den tragfähigen Baugrund eingeleitet. Im Bereich der Sporthalle wird die Bodenplatte mittels Zugpfählen gegen Auftrieb gesichert.
Der Baugrubenaushub erfolgt grundsätzlich geböscht. Lediglich in einer Ecke kommt eine zweifach rückverankerte Rühlwand zum Einsatz, um die Verformungen der unmittelbar angrenzenden Strasse zu minimieren.