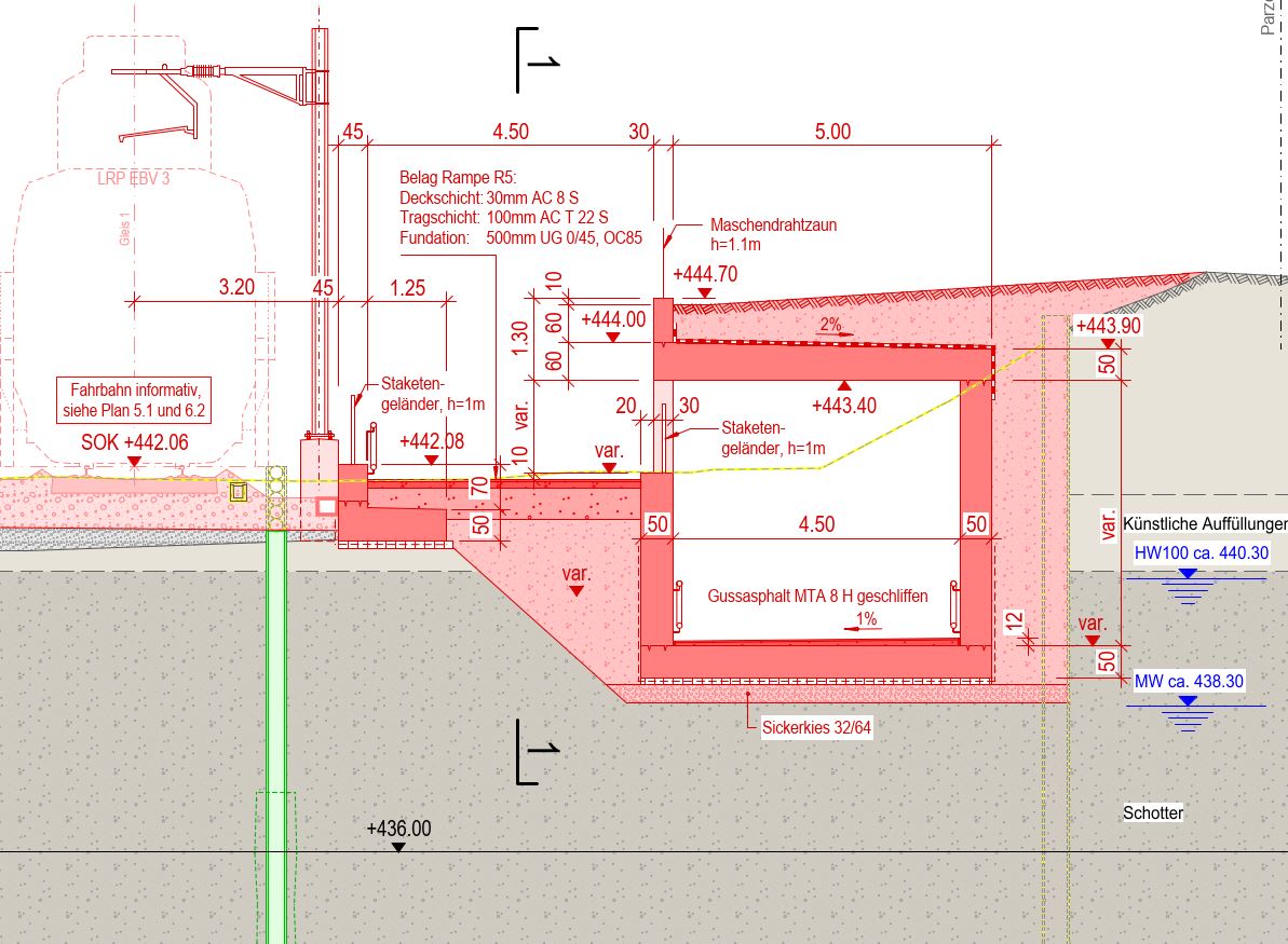
STEP AS 2035, Zürich Seebach